2 200,00 PLN (26,83 PLN)

Przestronny lokal - Brzeziny Śląskie

Lokal handlowy/usługowy na wynajem,
Piekary Śląskie, Biskupa Herberta Bednorza

Kontakt z agentem: Departament Nieruchomości
Opis nieruchomości

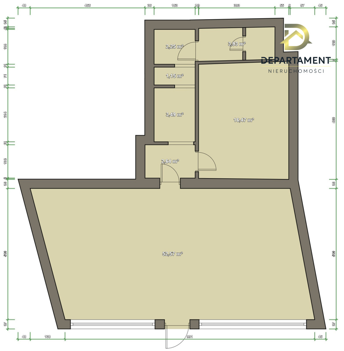
Lokal usługowy o powierzchni ok. 82 m² - Piekary Śląskie, ul. Biskupa Herberta Bednorza.

Do wynajęcia przestronny lokal usługowy o powierzchni ok. 82 m² usytuowany w Piekarach Śląskich przy ul. Biskupa Herberta Bednorza. Lokal znajduje się na parterze budynku, z bezpośrednim wejściem od strony ulicy oraz dużymi witrynami na całej długości elewacji frontowej.

UKŁAD LOKALU:

- główne, otwarte pomieszczenie ekspozycyjno-usługowe z witrynami,
- wydzielone pomieszczenie biurowe/magazynowe,
- długi korytarz z punktem wodnym (zmywak),
- łazienka z toaletą.

INFORMACJE O NIERUCHOMOŚCI:

- ogrzewanie przez klimatyzację z funkcją grzania,
- lokal może wymagać dostosowania do aktualnych wymogów sanitarnych w zależności od rodzaju prowadzonej działalności,
- wejście bezpośrednio z poziomu chodnika, możliwość montażu reklamy na witrynie,
- doskonała widoczność i ekspozycja od strony ulicy,
- dostęp do instalacji wodno-kanalizacyjnej i elektrycznej.

LOKALIZACJA:

W bliskiej odległości:
- przystanki komunikacji miejskiej,
- szkoły, przedszkola, żłobek,
- przychodnie, apteki,
- osiedla mieszkaniowe.

Lokal idealnie nadaje się na działalność handlową, usługową, biurową, gabinet lub inne formy działalności gospodarczej.

Umów się na prezentację!


Tel. 525157585


KLUCZE W BIURZE!
OFERTA NA WYŁACZNOŚĆ 

Niniejsze ogłoszenie ma charakter wyłącznie informacyjny i nie stanowi oferty handlowej w rozumieniu art. 66 §1 Kodeksu cywilnego. Informacje mogą ulec zmianie.

Plan Nieruchomości
Mapa
Kontakt z agentem

Departament Nieruchomości

Wiktoria Kronberg
Nieprawidłowy adres E-mail

Strona korzysta z plików cookie w celu realizacji usług zgodnie z Polityką prywatności. Możesz określić warunki przechowywania lub dostępu do cookie w Twojej przeglądarce.